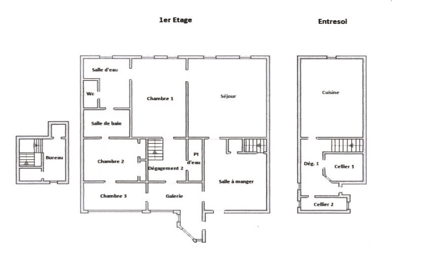
Appartement rue Dalbade

L’ESSENTIEL

Prix : 680 000 euros

Superficie 166 m²
Beaucoup de charme
Calme et luminosité
2/3 Chambres
Place de parking
grande cave

contact :

m.mothe@vip-occitanie.fr//06.16.28.61.34

Rue de la Dalbade, ambiance sereine, hôtels particuliers rivalisant d’élégance, à proximité de la place des Carmes, de son effervescence tranquille, de son marché couvert, des ses commerçants et restaurants. Un quartier privilégié, une rue chère aux toulousains.
Rue de la Dalbade donc, au premier étage d’un hôtel particulier, très bel appartement T5 de 166 m2 avec grande cave et place de parking.

Classe énergie D

Classe climat D

Honoraires charge acquéreur

Les informations sur les risques auxquels ce bien est exposé sont disponibles sur le site Géorisques: www.georisques.gouv.fr